Piso en venta en C. de Bravo Murillo

Madrid, Chamberí
620.000 €
2 dormitorios 2 dormitorios
73 m2 73 m2
2 baños 2 baños

Piso en venta en C. de Bravo Murillo

Madrid, Chamberí

Descripción anuncio

Agencia inmobiliaria de Madrid - Chamberí - Arapiles, Trafalgar, Almagro, Ríos Rosas - Tecnocasa - Vende - Calle Bravo Murillo

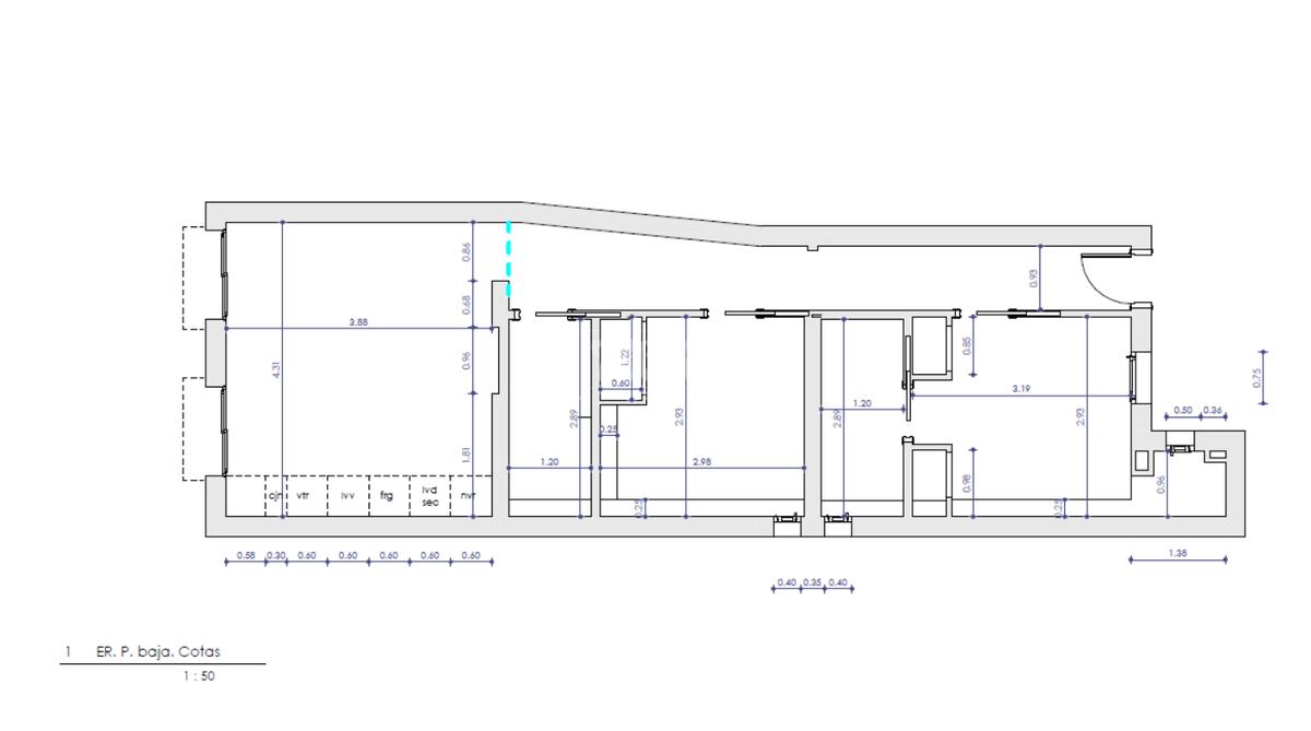
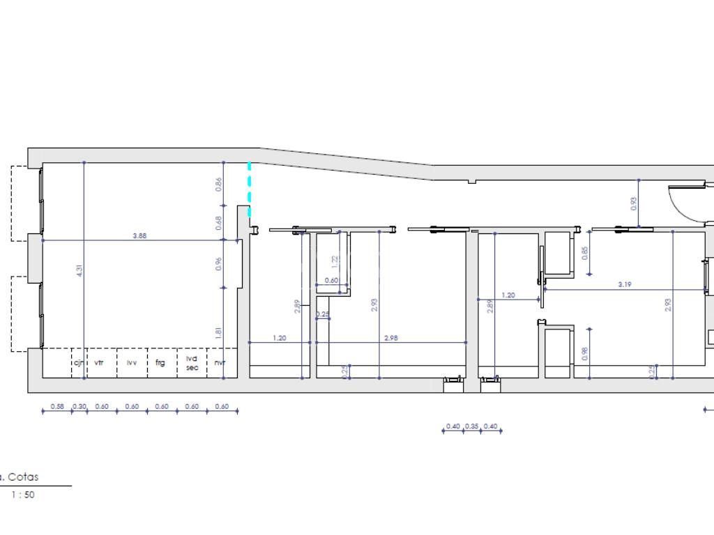
En pleno corazón de Arapiles cerca de la Glorieta de Quevedo, uno de los barrios más demandados y exclusivos de Chamberí, se ofrece esta magnífica vivienda de 73 m², situada en una primera planta. Actualmente en proceso de reforma, la propiedad se entregará totalmente reformada, con un diseño contemporáneo y materiales de alta calidad, ideal tanto como residencia habitual como inversión de alto valor.

El salón, amplio y luminoso, disfruta de orientación este y cuenta con dos balcones exteriores a la calle, lo que aporta una excelente entrada de luz natural. Este espacio integra una elegante cocina americana a medida, con mobiliario lacado y equipada con electrodomésticos panelados de primeras marcas: lavadora-secadora, vitrocerámica, horno, microondas, frigorífico y lavavajillas, combinando diseño, funcionalidad y confort.

La vivienda dispone de dos dormitorios y dos baños completos, uno de ellos en suite, además de armarios empotrados y una cuidada distribución pensada para aprovechar al máximo cada espacio. Cuenta con aire acondicionado por split, calefacción individual eléctrica, ventanas Climalit y suelo cerámico 100% resistente al agua, con elegante acabado en madera natural.

La reforma integral incluye:

Puertas lacadas

Iluminación directa e indirecta de diseño

Renovación completa de instalaciones: electricidad, fontanería, climatización y calefacción

Una oportunidad única para estrenar vivienda en Chamberí, en una ubicación privilegiada y con todas las comodidades de una reforma integral de alta calidad.

La propiedad se ubica en una de las mejores calles del barrio residencial de Arapiles, dentro del Distrito de Chamberí, en una zona céntrica de la capital y a pocos metros de José Abascal y el Paseo de la Castellana. La zona cuenta con una amplia oferta de servicios: grandes almacenes, comercios, farmacias, colegios, iglesias, gimnasios, hoteles, zonas deportivas, Mercadona a menos de 500 metros, el Mercado de Vallehermoso, así como una excelente selección de bares y restaurantes.

Muy bien comunicado, a tan solo 5 minutos andando de las estaciones de metro Quevedo, Canal, Alonso Cano e Iglesia, además de múltiples líneas de autobús en Bravo Murillo, General Álvarez de Castro, Eloy Gonzalo y Santa Engracia. Cercano a zonas emblemáticas como el Parque del Canal, Parque de Santander y la Plaza de Olavide.

Disponemos de departamento financiero propio, con posibilidad de conseguir hasta el 100 % de financiación. Para solicitar una visita o más información, no dude en ponerse en contacto con nosotros.

En Tecnocasa ofrecemos un servicio personalizado de gestión inmobiliaria, respaldado por más de 30 años de experiencia en la zona. No dude en comprobarlo solicitando una valoración gratuita y sin compromiso de su vivienda.

Ver más

Características

Ref.:
640858
Aire acondicionado:
Independiente
Libre:
Tipo de inmueble:
De época
Año de construcción:
1980
Ver más
Precio Precio
620.000 €
Cuota mensual Cuota mensual
€ 1.997 / mes

Clase energética

E
E
E
E
E
E
E
E
E
Consumo de energia:
229,9 kWh/m² año
Emisiones:
38,9 Kg CO2/m² año
Año de construcción:
1980

Servicios cercanos

Transporte público Transporte público
Quevedo
Quevedo
150 m
Canal
Canal
450 m
Moncloa
Moncloa
1,1 Km
Transporte público
1,2 Km
Bravo Murillo - Quevedo
Bravo Murillo - Quevedo
20 m
Colegios Colegios
ESDIP - Escuela de Arte
130 m
Escuelas
250 m
Colegio Público San Cristóbal
250 m
Mississippi
350 m
UNED
380 m
Farmacias Farmacias
Farmacia - Calle Bravo Murillo 25
130 m
Farmacia - Calle Feijoo 12
130 m
Farmacia - Calle Fernández de Los Ríos 20
150 m
Farmacia - Calle Fernández de los Ríos 21
200 m
Farmacia - Calle San Bernardo 115
230 m
Hospitales Hospitales
Clínica del Dolor de Madrid
410 m
Hospital Universitario HM Madrid
420 m
Hospital La Milagrosa
780 m
Hospitales
920 m
Instituto Provincial de Oftalmología
1,0 Km
Supermercados Supermercados
Mercadona
40 m
La Sirena
80 m
Villa de Madrid
150 m
Carrefour Market
180 m
Dia
190 m
Tiendas Tiendas
Pastelería Mallorca
20 m
Modas Miracle Magic
20 m
Motocard
70 m
Elizabeth Cross
70 m
Ñaco
90 m
Bar Bar
La Bientirada
70 m
Bésame Aquí
150 m
Taberna Saudade
160 m
La Nueva
170 m
Apolo
230 m
restaurantes restaurantes
Tasty Pasta
40 m
Costa Blanca
50 m
Robin Hood
80 m
Tierra
80 m
Ginos
110 m
Ver más

Calcula tu hipoteca

Simple y sin compromiso
Entrada
%
al mes
Hipoteca
%
El resultado de esta simulación es orientativo. Los datos indicados no corresponden a condiciones reales de productos y no implican compromiso, obligación o vínculo jurídico-legal para el Grupo Tecnocasa.

Solicita un asesoramiento

Introduce tus datos
GRACIAS POR CONTACTAR CON NOSOTROS.
Esta oficina de Kìron se pondrá en contacto contigo lo antes posible para ofrecerte un asesoramiento financiero más completo y acorde a la información que nos has facilitado.
Franquiciado
Chamberi Gestion Inmobiliaria 2022 Sl
Calle Bravo Murillo, 26, Local 28015 Madrid (M)
Calle Bravo Murillo, 26, Local 28015 Madrid (M) Zona: ARAPILES – TRAFALGAR - ALMAGRO
Lunes a Viernes: 09:30 a 14:00 - 17:00 a 21:00. Sábados: 10:00 a 14:00. Sábados tarde y Domingos previa cita.

Nuestro equipo


  • Javier Hernandez
    Colaborador

  • Daniela González
    Franquiciado

  • Andreína González
    Colaborador

  • Angel Contreras
    Colaborador

  • Alejandro Hernandez
    Franquiciado
Franquiciado
Chamberi Gestion Inmobiliaria 2022 Sl
Calle Bravo Murillo, 26, Local 28015 Madrid (M)

Franquiciado
Chamberi Gestion Inmobiliaria 2022 Sl
Franquiciado
Chamberi Gestion Inmobiliaria 2022 Sl

2026 Ibero Group Tecnocasa Services, S.L.U. - CIF B-65870776 - C/ Pallars, nº 1-3 Parque de Negocios Mas Blau II, 08820, El Prat de Llobregat (Barcelona-España). Red en franquicia - Cada sociedad franquiciada tiene su propio titular y es independiente del franquiciador.

Política de privacidad | Aviso legal | Pólitica de las Cookies | Información al consumidor | | Canal ético